时产300-500立方砂石生产线工艺流程及配置方案
本文详细介绍一条每小时产量在300-500立方的砂石生产线流程,以及所使用的破碎设备配置方案、流程工艺设计等内容,上海98-web一直致力于为客户提供有价值的碎石成套生产线设备解决方案,希望此文对大家能有参考和帮助。
一、砂石料类型
破碎物料:石灰岩爆破料
说明:石灰岩属于硬度不高的物料,在本条砂石生产线配置建议中可以选用反击式破碎机和细碎机作为二破段中细碎设备。
产量:300-500m³
二、破碎筛分设备型号和价格
| 序号 | 破碎筛分设备名称 | 型号 | 功率(kw) | 数量(台) | 单价(元) | 总价(元) |
| 1 | 振动喂料机 | ZSW-600*130 | 30 | 1 | 价格请咨询销售人员 | |
| 2 | 颚式破碎机 | PE-1000*1200 | 132 | 1 | ||
| 3 | 悬挂式给料机 | GZG-1253 | 2.2*2 | 1 | ||
| 4 | 反击破 | PF-1515 | 280 | 2 | ||
| 5 | 高效细碎机(制砂机) | PX-1616 | 250 | 2 | ||
| 6 | 立轴式冲击破(整形机) | HB-1000 | 132*2 | 2 | ||
| 7 | 圆振动筛 | 3YK-3072 | 30*2 | 2 | ||
| 8 | 圆振动筛 | 3YK-3072 | 30*2 | 2 | ||
| 9 | 圆振动筛 | 3YK-3072 | 30*2 | 2 | ||
| 10 | 圆振动筛 | YK-1860 | 18.5 | 1 | ||
以上设备配置中不包含皮带机、钢结构、混凝土基础及电缆电线等辅助件;所有设备均实行国家“三包”政策,质保期限为一年(易损件除外);设备的付款方式和发货周期请咨询本公司销售人员。
三、砂石生产线工艺流程
1、头破机组设备选型
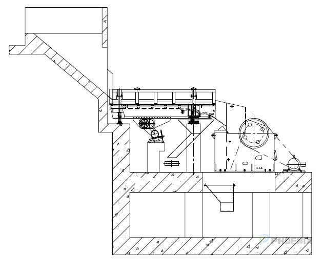
采用振动式喂料机型号为:ZSW600*130喂料机,为砂石生产线提供均匀给料。
工艺流程说明:
振动喂料机的筛分功能,能确保将石料中的土质杂质及碎料分离出来,然后由并机的YK1860振动筛进行精细筛分,将小于20mm的杂土废料分离出,从而确保石料的品质,并达到原料最小损失量。颚式破碎机采用PE1000*1200型号,满足最大进料粒度850mm的破碎要求。经过振动喂料机筛分的大料,以及除土筛回收的小料,进入颚式破碎机进行破碎作业。
振动喂料机的筛分功能,能确保将石料中的土质杂质及碎料分离出来,然后由并机的YK1860振动筛进行精细筛分,将小于20mm的杂土废料分离出,从而确保石料的品质,并达到原料最小损失量。颚式破碎机采用PE1000*1200型号,满足最大进料粒度850mm的破碎要求。经过振动喂料机筛分的大料,以及除土筛回收的小料,进入颚式破碎机进行破碎作业。
图:振动喂料机、颚式破碎机(组合安装简图)

图:振动喂料机和颚式破碎机现场图
振动喂料机前方设计使用大型料仓,满足生产线持续大流量喂料的需求;装载车可以直接向大型料斗卸料,也可以由装载机直接装载供料给喂料机。
2、二破机组设备选型
采用反击式破碎机,型号为:PF1515,为砂石生产线提供二级破碎。
工艺流程说明:
经过头破系统的处理后,石料粒度降低到250mm以内,其中80%以上降低到200mm以内。然后,经由1.4米宽度的皮带输送机,输送到中间料仓进行缓冲。
经过头破系统的处理后,石料粒度降低到250mm以内,其中80%以上降低到200mm以内。然后,经由1.4米宽度的皮带输送机,输送到中间料仓进行缓冲。
中间料仓具有一定储量的缓冲能力,当头破系统喂料量不充足的情况下,能够满足二破系统数小时的供料量,从而规避二破及后续系统的空载现象,进而实现生产效益的最大化。
中间料仓的缓冲料,通过料仓底部型号为GZG-1253悬挂喂料机,均匀输送到两台并联的大型PF1515反击式破碎机,完成第二级的破碎作业。反击式破碎机PF1515具有强大的破碎能力,能够将石料粒度破碎到厘米级规格,并具备一定的粒型度。

图:反击式破碎机(安装简图)

图:反击式破碎机现场

图:反击式破碎机现场
两台并联的大型反击破,在设备下方共用一条倒料皮带输送机,将两台反击破的出料并联输送,搭接到后续1.4米宽的主皮带机,输送到下一级振动筛进行筛分。
3、一次筛分机组选型
采用振动筛,型号为YK系列,建议型号为3YK3072振动筛,为砂石生产线提供物料筛分。
工艺流程说明:
经过两级破碎之后,石料的粒度基本降低到厘米级别。我司生产线采用两台并联的大型3YK3072圆振动筛,将厘米级混合料进行一次筛分处理。
经过两级破碎之后,石料的粒度基本降低到厘米级别。我司生产线采用两台并联的大型3YK3072圆振动筛,将厘米级混合料进行一次筛分处理。

图:振动筛(安装简图)

图:振动筛现场
工艺流程说明:
3YK3072振动筛的四种出料,进入不同的后续作业流程。
3YK3072振动筛的四种出料,进入不同的后续作业流程。
a、0-6mm,直接作为成品料,输送到后续筛分设备,完成0-3mm、3-6mm的筛分堆料;
b、6-11mm,振动筛采用双向出料口设计:

图:双向出料口简图
A向出料口,6-11mm物料作为成品料,输送到后续筛分设备,完成筛分后堆料;
B向出料口,6-11mm物料输送到细碎机进行制砂。选择不同的出料口,可以实现不同的运行任务;
c、11-31.5mm,作为半成品料,输送到型号HB1000制砂整形机进行整型破碎,从而获得粒型优异的石子骨料;
d、大于31.5mm,输送到细碎机进行第三级破碎作业。
4、超高细破碎机组选型
采用高效细碎机,型号为PCD1616,能为砂石生产线提供更细化的破碎工序。
工艺流程说明:
采用两台大型PCD1616超高细破碎机,实现高效率的细化破碎任务。高效细碎机采用了先进的分体式锤破结构,以及高频反击强制破碎技术,能够获得最高效率的细碎效果。因此,细碎机组不仅可以将需求量很少的6-11mm中间料完全细化为6mm以下的机制砂,同时将大于31mm的返料完全消化。
采用两台大型PCD1616超高细破碎机,实现高效率的细化破碎任务。高效细碎机采用了先进的分体式锤破结构,以及高频反击强制破碎技术,能够获得最高效率的细碎效果。因此,细碎机组不仅可以将需求量很少的6-11mm中间料完全细化为6mm以下的机制砂,同时将大于31mm的返料完全消化。
高效细碎机PCD1616采用了分体式高铬合金材质锤头,具备超强耐磨特性,在石灰岩破碎生产线应用中性能突出,获得了用户的高度评价,在全国各地区由大量应用案例,可以参观考察。

图:高效细碎机(安装组合简图)

图:细碎机现场
两台并联PCD1616高效细碎机,在设备下方共用一条倒料皮带输送机,将两台反击破的出料并联输送,搭接到后续1.4米宽的主皮带机,输送到下一级振动筛进行筛分。两台并联PCD1616高效细碎机,以及两台PF1515大型反击破,共用了一条主皮带输送机,从而达到了简约化布局效果,减少了中间能耗与空间占用。
5、整型机组选型
采用制砂整形机,型号为HB1000系列,为砂石生产线提供粒型优异的成品料。
工艺流程说明:石料经过颚破、反击破的两极破碎作业、一次筛分机组,将11-31.5mm的半成品筛分后,通过皮带输送机输送到整型机组。该生产线工艺设计,采用了两台HB1000整型机并联作业。一次筛分出的11-31.5mm半成品料全部整型破碎,从而获得粒型优异的成品石子骨料。

图:制砂整形机(安装组合简图)

图:制砂整形机现场图

图:制砂整形机现场图
HB系列整型机采用高速、离心、冲击式整型技术,能够使得石料的粒型获得最大程度的优化,从而达到各类高等级石子骨料的技术要求。两台并联HB1000高速整形机,在设备下方共用一条倒料皮带输送机,将两台整型机的出料并联输送,搭接到后续1.2米宽的皮带机,输送到下一级振动筛进行筛分。
6、成品料筛分机组选型
该砂石生产线成品料共计6种,分别如下表所示:
| 成品类型 | 0~3mm | 3~6mm | 6~11mm | 11~19mm | 19~26.5mm | 26.5~31.5mm |
| 比例范围 | 30% | 20% | 5% | 20% | 10% | 10% |
工艺流程说明:
根据我司对石灰岩砂石生产线的工艺设计,0-19mm范围的物料占成品80%,由两台大型3YK3072圆振动筛完成筛分作业;19-31.5mm范围物料占成品20%,由一台3YK3072大型圆振动筛完成筛分作业。成品筛分机组、一次筛分机组,采用了相同的规格型号3YK3072,可以实现备品备件的完全互换与通用,从而减少备件库存,减少备件的资金积压,也提高了振动筛维修维护的便捷性。
根据我司对石灰岩砂石生产线的工艺设计,0-19mm范围的物料占成品80%,由两台大型3YK3072圆振动筛完成筛分作业;19-31.5mm范围物料占成品20%,由一台3YK3072大型圆振动筛完成筛分作业。成品筛分机组、一次筛分机组,采用了相同的规格型号3YK3072,可以实现备品备件的完全互换与通用,从而减少备件库存,减少备件的资金积压,也提高了振动筛维修维护的便捷性。
7、除土筛设备选型
除土筛的应用能够确保原料中的土质杂质被完全清除,从而获得高品质砂石骨料。
工艺流程说明:
振动喂料机的筛分功能,只能实现局部筛分,无法将原料中的土质杂质完全筛离。如果不能做到完全除土,那么就无法获得高品质的砂石骨料。因此,我司采用单独并联的YK1860振动筛作为除土筛,设计目的非常明确,就是将原料中的土质杂质清除干净,获得高品质成品料。此外,采用单独的除土筛,可以将废料中的有用石子回收,降低原料损失率。长期运行过程中,回收的数量会非常可观,经济效益显著。
振动喂料机的筛分功能,只能实现局部筛分,无法将原料中的土质杂质完全筛离。如果不能做到完全除土,那么就无法获得高品质的砂石骨料。因此,我司采用单独并联的YK1860振动筛作为除土筛,设计目的非常明确,就是将原料中的土质杂质清除干净,获得高品质成品料。此外,采用单独的除土筛,可以将废料中的有用石子回收,降低原料损失率。长期运行过程中,回收的数量会非常可观,经济效益显著。
8、其它:
本着高效节能,稳定可靠的设计理念,我司在多年实践经验的基础上,设计完成该生产线工艺流程并不断进行升级优化。请各位读者、专家批评指正,以便于综合各方的经验与技术,获得较好的设计、运行效果,非常感谢大家阅读本文!
此文为上海98-web冶金设备有限公司m.98-web.com原创发布,转载请注明文章出处!
返回首页
砂石生产线的料仓和给料机如何布置
2023-03-30
98-web碎石生产线满足不同的工艺要求,受到广大碎石厂家的青睐
2019-09-03
日产2000吨砂石生产线设备配置及注意事项
2024-09-19
【露天矿开采】简单普及一下露天矿开采滑坡的类型、预防及治理,一定要记牢!
2019-10-08
【砂石骨料价格】多地砂石涨价,且“有价无货”——2019年7月全国砂石骨料价格和产量
2019-08-07
煤炭行业机械新发展
2019-05-10
西蒙斯圆锥破碎机润滑与维护
2019-05-10
【砂石需求】地球上的沙子快用完了,价格即将飞涨!
2019-08-12
破碎设备大课堂之振动给料机篇
2019-05-12
上海破碎机行业发展应紧跟国家基础建设进程
2019-05-12
煤矸石能否制砂以及所用设备介绍
2024-02-27
反击式破碎机的发展历程
2019-05-12
CF反击破和普通反击式破碎机两种机型的区别是什么?
2019-12-18
细碎机、滚筒筛发货回顾,破碎机厂家直销质量
2019-07-24
破碎设备与钢铁涨价是有着直接影响的。
2019-05-10
制砂机厂家成本包括人工成本,运输成本,材料成本等
2020-06-24
一定要了解的破碎机械常识
2019-05-10
上海98-web矿山设备致谢全国各地代理商
2019-05-12
复合圆锥破碎机安装时要注意哪些事项?
2020-01-05
湖北省综合施策为缓解砂石供需矛盾而开辟新砂石来源
2019-10-04






